x

Сделать запрос

Array
(
)
Имя *
Телефон *
E-mail *
Комментарий

Отправляя это сообщение, Вы соглашаетесь с политикой конфиденциальности

О компании
Продукция
Цены
Акции
Строительство
О дереве
Контакты
 
 




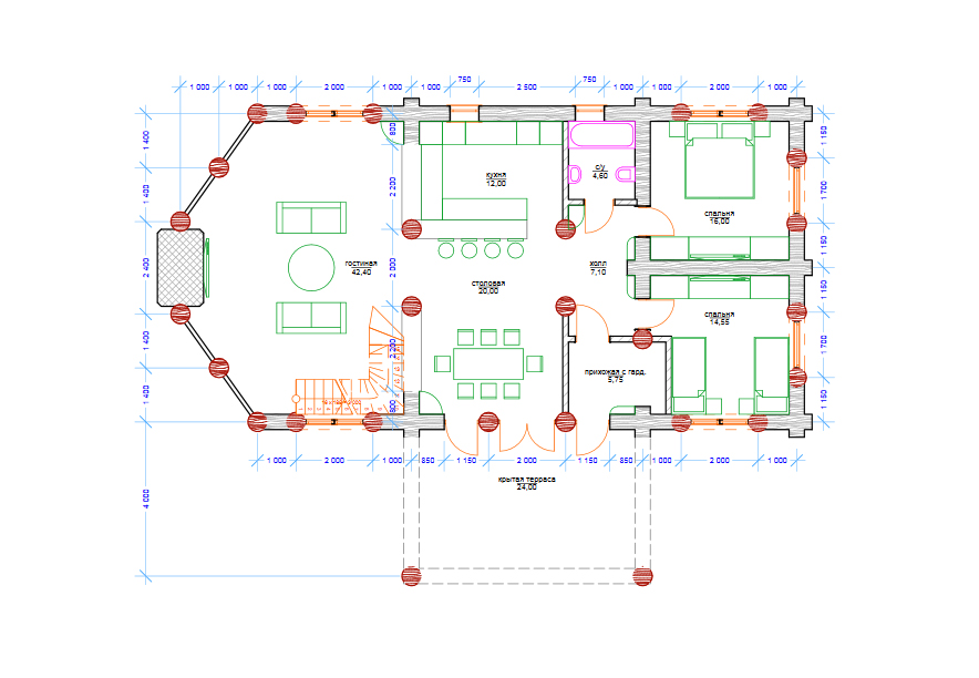
Проект «Весеннее настроение»

  • Общая площадь 290 м2

  • Сруб из бревен диаметром 26-40 см

  • Этажность: 2

  • Цена 6.700.000 рублей



*Стоимость «под ключ» зависит от используемых материалов, а также объема и сложности работ.






План1 План2